Površina 106,12 m2
Stan A31
Za više informacija molimo kontaktirati Petković nekretnine na kontakte navedene ispod
info@petkovic-nekretnine.hr
www.petkovic-nekretnine.hr
HR: +385 99 4444 333
BIH: +387 63 444 333
Stan A31 nalazi se na etaži 5 te Vas do njega vodi moderan lift, a predstavlja spoj suvremenog dizajna, vrhunske opremljenosti i idealne lokacije u samom centru grada. Svaki detalj pažljivo je osmišljen kako bi vam pružio maksimalnu udobnost, sigurnost i funkcionalnost.
Stan je opremljen troslojnim PVC prozorima u antracit boji, električnim roletama, klimatizacijom u svakoj sobi te podnim grijanjem u kupaonici. Podovi su obloženi visokokvalitetnim parketom i keramikom, a ulazna blindo vrata osiguravaju dodatnu zaštitu.
Zahvaljujući izvrsnoj termo i zvučnoj izolaciji, kao i zasebnom ventilacijskom sustavu, stan jamči mir i privatnost, bez miješanja mirisa ili buke iz susjednih jedinica, a zidovi su obrađeni gips-kartonskim oblogama.
Ispod su prikazani primjeri mogućeg uređenja stana te ne prikazuju finalno izvedeno stanje.
Po želji i dogovoru je uz nadoplatu moguće ugovaranje sistema ključ u ruke kako bi stan bio završen i uređen u skladu sa slikama ispod.
-
-
Sobnost Trosoban
-
Tip prostoraStan
-
Status Petković nekretnine
Moderan interijer
Zidovi obrađeni gips-kartonskim oblogama za čist i suvremen izgled
Kvalitetna stolarija
PVC prozori u antracit boji s troslojnim staklima i električnim roletama
Potpuna udobnost
Klima uređaj u svakoj sobi i podno grijanje u kupaonici
Prvoklasne površine
Parket i keramika visoke kvalitete u svim prostorijama
Sigurnost i mir
Blindo vrata, termo i zvučna izolacija za maksimalnu privatnost
Dostupnost liftom
Do stana vodi moderan lift spojen s garažnim etažama
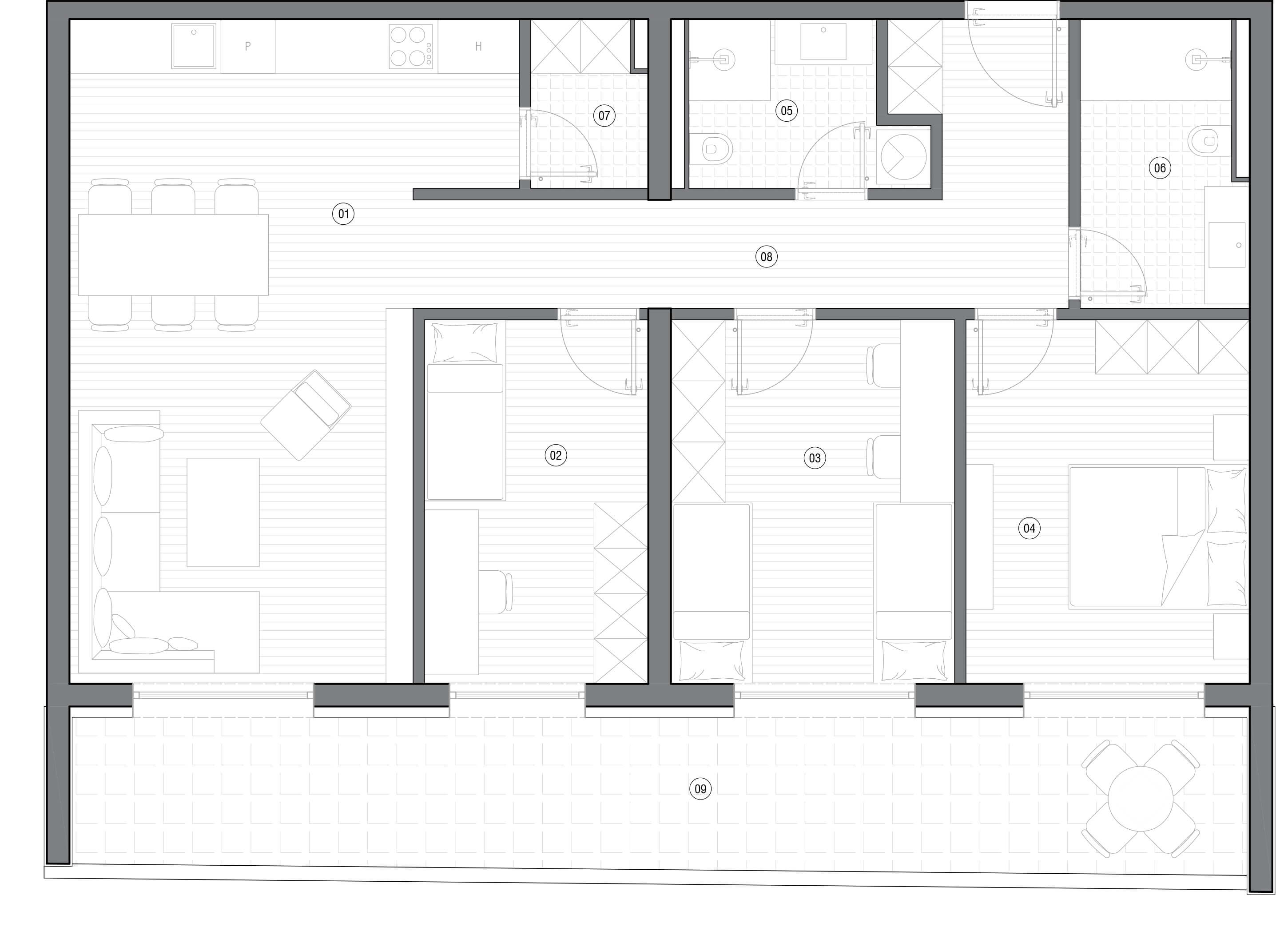
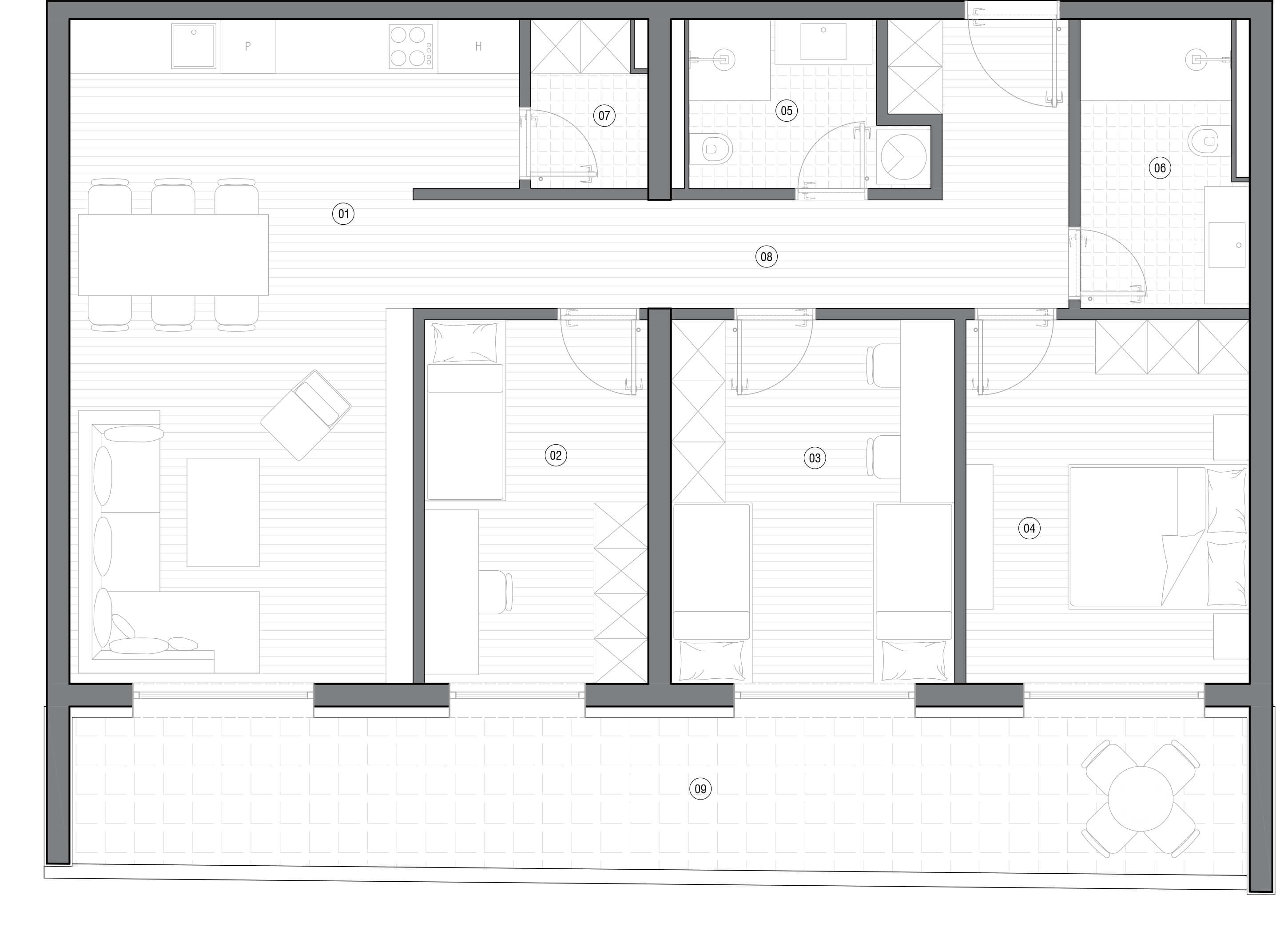
Tlocrt stana
| Broj prostorije | Naziv prostorije | Površina (m2) | Koeficijent obračuna | Prodajna površina (m2) | |
|---|---|---|---|---|---|
| 1 | D. boravak, blagovaonica i kuhinja | 30,13 | 1,00 | 30,13 | |
| 2 | Soba 1 | 9,96 | 1,00 | 9,96 | |
| 3 | Soba 2 | 12,62 | 1,00 | 12,62 | |
| 4 | Soba 3 | 12,62 | 1,00 | 12,62 | |
| 5 | Kupaonica 1 | 4,31 | 1,00 | 4,31 | |
| 6 | Kupaonica 2 | 5,64 | 1,00 | 5,64 | |
| 7 | Ostava | 2,31 | 1,00 | 2,31 | |
| 8 | Hodnik | 12,13 | 1,00 | 12,13 | |
| 9 | Lođa | 21,86 | 0,75 | 16,40 | |
| Ukupno | 111,58 | 106,12 |
D. boravak, blagovaonica i kuhinja
Broj prostorije:
1
Površina (m2):
30,13
Koeficijent obračuna:
1,00
Prodajna površina (m2):
30,13
Soba 1
Broj prostorije:
2
Površina (m2):
9,96
Koeficijent obračuna:
1,00
Prodajna površina (m2):
9,96
Soba 2
Broj prostorije:
3
Površina (m2):
12,62
Koeficijent obračuna:
1,00
Prodajna površina (m2):
12,62
Soba 3
Broj prostorije:
4
Površina (m2):
12,62
Koeficijent obračuna:
1,00
Prodajna površina (m2):
12,62
Kupaonica 1
Broj prostorije:
5
Površina (m2):
4,31
Koeficijent obračuna:
1,00
Prodajna površina (m2):
4,31
Kupaonica 2
Broj prostorije:
6
Površina (m2):
5,64
Koeficijent obračuna:
1,00
Prodajna površina (m2):
5,64
Ostava
Broj prostorije:
7
Površina (m2):
2,31
Koeficijent obračuna:
1,00
Prodajna površina (m2):
2,31
Hodnik
Broj prostorije:
8
Površina (m2):
12,13
Koeficijent obračuna:
1,00
Prodajna površina (m2):
12,13
Lođa
Broj prostorije:
9
Površina (m2):
21,86
Koeficijent obračuna:
0,75
Prodajna površina (m2):
16,40
Ukupno
Površina (m2):
111,58
Prodajna površina (m2):
106,12



