Površina 78,09 m2
Stan B01
Stan B01 nalazi se na etaži 1 te Vas do njega vodi moderan lift, a predstavlja spoj suvremenog dizajna, vrhunske opremljenosti i idealne lokacije u samom centru grada. Svaki detalj pažljivo je osmišljen kako bi vam pružio maksimalnu udobnost, sigurnost i funkcionalnost.
Stan je opremljen troslojnim PVC prozorima u antracit boji, električnim roletama, klimatizacijom u svakoj sobi te podnim grijanjem u kupaonici. Podovi su obloženi visokokvalitetnim parketom i keramikom, a ulazna blindo vrata osiguravaju dodatnu zaštitu.
Zahvaljujući izvrsnoj termo i zvučnoj izolaciji, kao i zasebnom ventilacijskom sustavu, stan jamči mir i privatnost, bez miješanja mirisa ili buke iz susjednih jedinica, a zidovi su obrađeni gips-kartonskim oblogama.
Ispod su prikazani primjeri mogućeg uređenja stana te ne prikazuju finalno izvedeno stanje.
Po želji i dogovoru je uz nadoplatu moguće ugovaranje sistema ključ u ruke kako bi stan bio završen i uređen u skladu sa slikama ispod.
-
-
Sobnost Dvosoban
-
Tip prostoraStan
-
Status Dostupno
Moderan interijer
Zidovi obrađeni gips-kartonskim oblogama za čist i suvremen izgled
Kvalitetna stolarija
PVC prozori u antracit boji s troslojnim staklima i električnim roletama
Potpuna udobnost
Klima uređaj u svakoj sobi i podno grijanje u kupaonici
Prvoklasne površine
Parket i keramika visoke kvalitete u svim prostorijama
Sigurnost i mir
Blindo vrata, termo i zvučna izolacija za maksimalnu privatnost
Dostupnost liftom
Do stana vodi moderan lift spojen s garažnim etažama
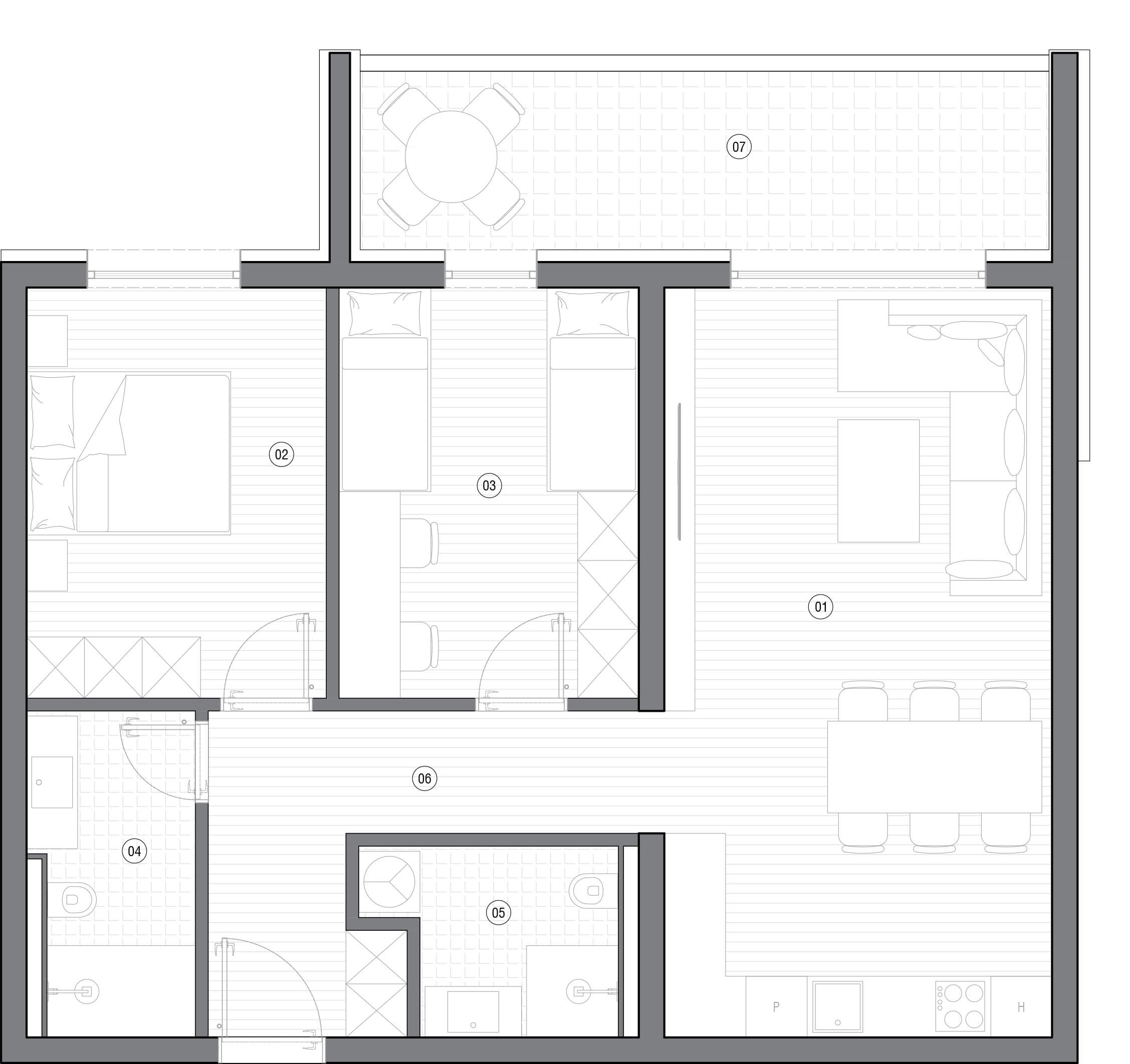
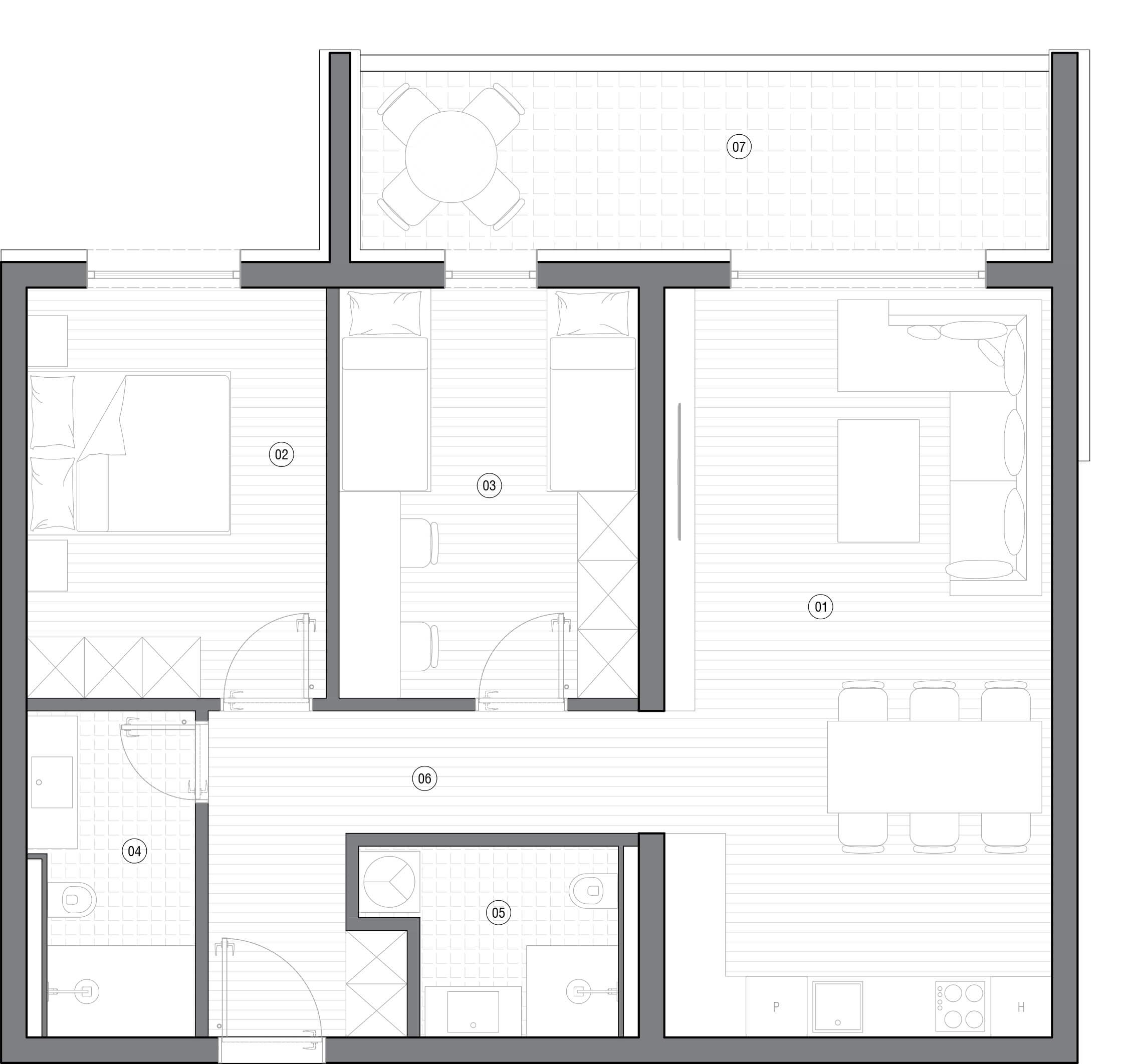
Tlocrt stana
| Broj prostorije | Naziv prostorije | Površina (m2) | Koeficijent obračuna | Prodajna površina (m2) | |
|---|---|---|---|---|---|
| 1 | D. boravak, blagovaonica i kuhinja | 27,92 | 1,00 | 27,92 | |
| 2 | Soba 1 | 11,82 | 1,00 | 11,82 | |
| 3 | Soba 2 | 11,82 | 1,00 | 11,82 | |
| 4 | Kupaonica 1 | 4,93 | 1,00 | 4,93 | |
| 5 | Kupaonica 2 | 4,06 | 1,00 | 4,06 | |
| 6 | Hodnik | 8,69 | 1,00 | 8,69 | |
| 7 | Lođa | 11,81 | 0,75 | 8,85 | |
| Ukupno | 81,05 | 78,09 |
D. boravak, blagovaonica i kuhinja
Broj prostorije:
1
Površina (m2):
27,92
Koeficijent obračuna:
1,00
Prodajna površina (m2):
27,92
Soba 1
Broj prostorije:
2
Površina (m2):
11,82
Koeficijent obračuna:
1,00
Prodajna površina (m2):
11,82
Soba 2
Broj prostorije:
3
Površina (m2):
11,82
Koeficijent obračuna:
1,00
Prodajna površina (m2):
11,82
Kupaonica 1
Broj prostorije:
4
Površina (m2):
4,93
Koeficijent obračuna:
1,00
Prodajna površina (m2):
4,93
Kupaonica 2
Broj prostorije:
5
Površina (m2):
4,06
Koeficijent obračuna:
1,00
Prodajna površina (m2):
4,06
Hodnik
Broj prostorije:
6
Površina (m2):
8,69
Koeficijent obračuna:
1,00
Prodajna površina (m2):
8,69
Lođa
Broj prostorije:
7
Površina (m2):
11,81
Koeficijent obračuna:
0,75
Prodajna površina (m2):
8,85
Ukupno
Površina (m2):
81,05
Prodajna površina (m2):
78,09



