Površina 148,70 m2
Stan B31
Stan B31 nalazi se na etaži 5 te Vas do njega vodi moderan lift, a predstavlja spoj suvremenog dizajna, vrhunske opremljenosti i idealne lokacije u samom centru grada. Svaki detalj pažljivo je osmišljen kako bi vam pružio maksimalnu udobnost, sigurnost i funkcionalnost.
Stan je opremljen troslojnim PVC prozorima u antracit boji, električnim roletama, klimatizacijom u svakoj sobi te podnim grijanjem u kupaonici. Podovi su obloženi visokokvalitetnim parketom i keramikom, a ulazna blindo vrata osiguravaju dodatnu zaštitu.
Zahvaljujući izvrsnoj termo i zvučnoj izolaciji, kao i zasebnom ventilacijskom sustavu, stan jamči mir i privatnost, bez miješanja mirisa ili buke iz susjednih jedinica, a zidovi su obrađeni gips-kartonskim oblogama.
Ispod su prikazani primjeri mogućeg uređenja stana te ne prikazuju finalno izvedeno stanje.
Po želji i dogovoru je uz nadoplatu moguće ugovaranje sistema ključ u ruke kako bi stan bio završen i uređen u skladu sa slikama ispod.
-
-
Sobnost Trosoban
-
Tip prostoraStan
-
Status Prodano
Moderan interijer
Zidovi obrađeni gips-kartonskim oblogama za čist i suvremen izgled
Kvalitetna stolarija
PVC prozori u antracit boji s troslojnim staklima i električnim roletama
Potpuna udobnost
Klima uređaj u svakoj sobi i podno grijanje u kupaonici
Prvoklasne površine
Parket i keramika visoke kvalitete u svim prostorijama
Sigurnost i mir
Blindo vrata, termo i zvučna izolacija za maksimalnu privatnost
Dostupnost liftom
Do stana vodi moderan lift spojen s garažnim etažama
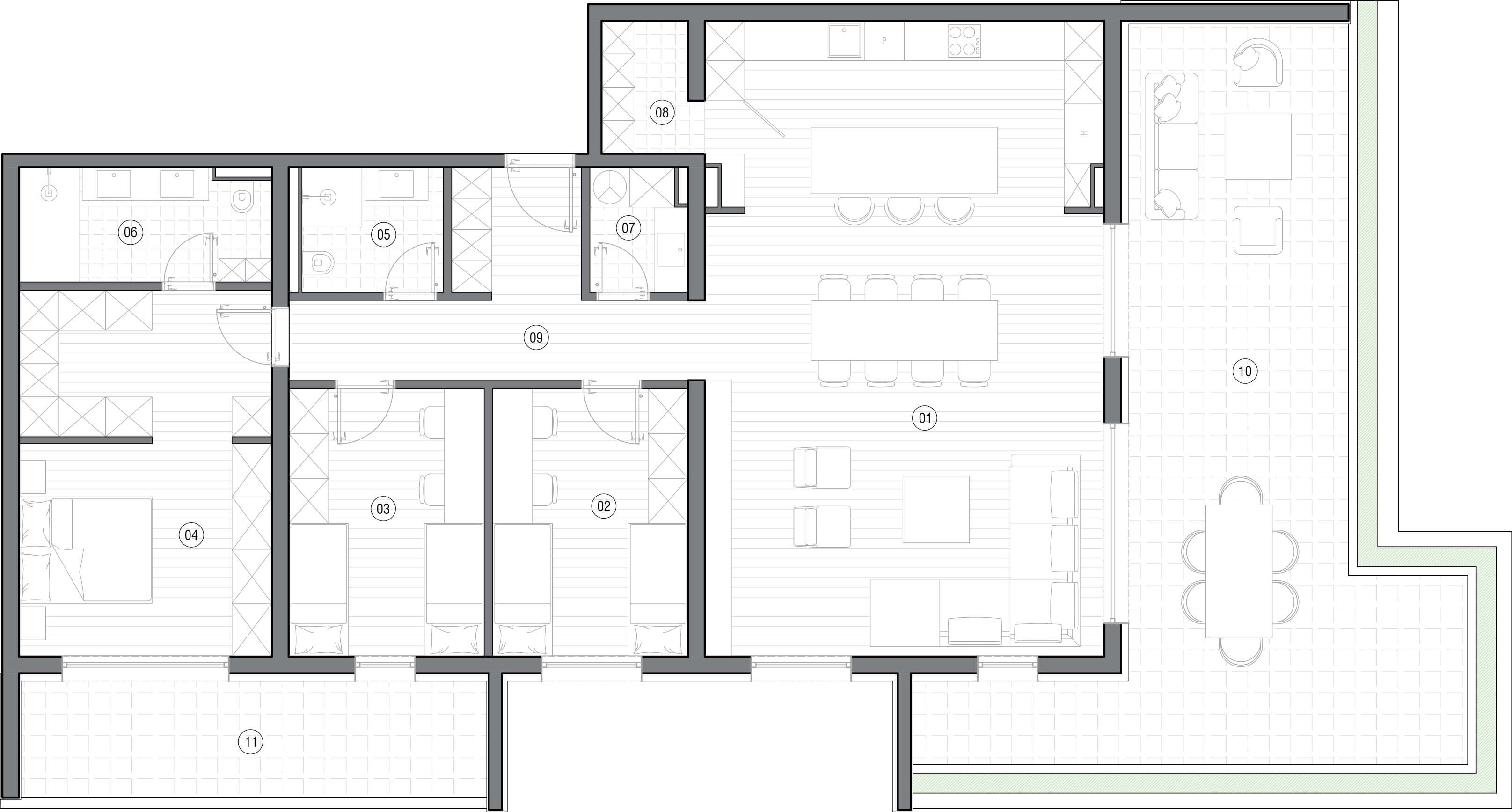
Tlocrt stana
| Broj prostorije | Naziv prostorije | Površina (m2) | Koeficijent obračuna | Prodajna površina (m2) | |
|---|---|---|---|---|---|
| 1 | D. boravak, blagovaonica i kuhinja | 56,88 | 1,00 | 56,88 | |
| 2 | Soba 1 | 11,82 | 1,00 | 11,82 | |
| 3 | Soba 2 | 11,82 | 1,00 | 11,82 | |
| 4 | Soba 3 | 20,64 | 1,00 | 20,64 | |
| 5 | Kupaonica 1 | 3,98 | 1,00 | 3,98 | |
| 6 | Kupaonica 2 | 6,37 | 1,00 | 6,37 | |
| 7 | Vešeraj | 2,64 | 1,00 | 2,64 | |
| 8 | Ostava | 2,60 | 1,00 | 2,60 | |
| 9 | Hodnik | 11,32 | 1,00 | 11,32 | |
| 10 | Terasa | 45,82 | 0,25 | 11,45 | |
| 11 | Lođa | 12,24 | 0,75 | 9,18 | |
| Ukupno | 186,13 | 148,70 |
D. boravak, blagovaonica i kuhinja
Broj prostorije:
1
Površina (m2):
56,88
Koeficijent obračuna:
1,00
Prodajna površina (m2):
56,88
Soba 1
Broj prostorije:
2
Površina (m2):
11,82
Koeficijent obračuna:
1,00
Prodajna površina (m2):
11,82
Soba 2
Broj prostorije:
3
Površina (m2):
11,82
Koeficijent obračuna:
1,00
Prodajna površina (m2):
11,82
Soba 3
Broj prostorije:
4
Površina (m2):
20,64
Koeficijent obračuna:
1,00
Prodajna površina (m2):
20,64
Kupaonica 1
Broj prostorije:
5
Površina (m2):
3,98
Koeficijent obračuna:
1,00
Prodajna površina (m2):
3,98
Kupaonica 2
Broj prostorije:
6
Površina (m2):
6,37
Koeficijent obračuna:
1,00
Prodajna površina (m2):
6,37
Vešeraj
Broj prostorije:
7
Površina (m2):
2,64
Koeficijent obračuna:
1,00
Prodajna površina (m2):
2,64
Ostava
Broj prostorije:
8
Površina (m2):
2,60
Koeficijent obračuna:
1,00
Prodajna površina (m2):
2,60
Hodnik
Broj prostorije:
9
Površina (m2):
11,32
Koeficijent obračuna:
1,00
Prodajna površina (m2):
11,32
Terasa
Broj prostorije:
10
Površina (m2):
45,82
Koeficijent obračuna:
0,25
Prodajna površina (m2):
11,45
Lođa
Broj prostorije:
11
Površina (m2):
12,24
Koeficijent obračuna:
0,75
Prodajna površina (m2):
9,18
Ukupno
Površina (m2):
186,13
Prodajna površina (m2):
148,70



